Un'aula intelligente
Rivedere uno spazio considerando le intelligenze multiple.
La teoria
Fino alla fine degli Anni '90 il concetto di intelligenza è, principalmente, unico e astratto (QI), legato alla capacita di memorizzazione. Con gli studiosi Sternberg e Gardner si considera anche una intelligenza “pratica” portando l’esempio di studenti scolasticamente ritenuti deboli, ma che, forti nella pratica, diventano importanti imprenditori o politici, musicisti, sportivi, ecc.
La teoria delle intelligenze multiple sostiene l’esistenza di altre diverse forme di intelligenza: oltre a quelle logico-matematica e linguistica troviamo quelle musicale, visivo-spaziale, corporea, cinestetica, interpersonale, intrapersonale e naturalistica.
Seguendo la teoria delle intelligenze multiple è nata concretamente l'opportunità di studiare e realizzare, in condivisione con il corpo docenti, le allieve e gli allievi, la direzione e la commissione delle Scuole di Bregaglia, un nuovo spazio didattico, trasformando la vecchia aula d’informatica. Uno spazio dove l'allievo o l'allieva diventa protagonista attivo nell'esplorazione, sviluppo e messa in comune delle proprie competenze.
In concreto
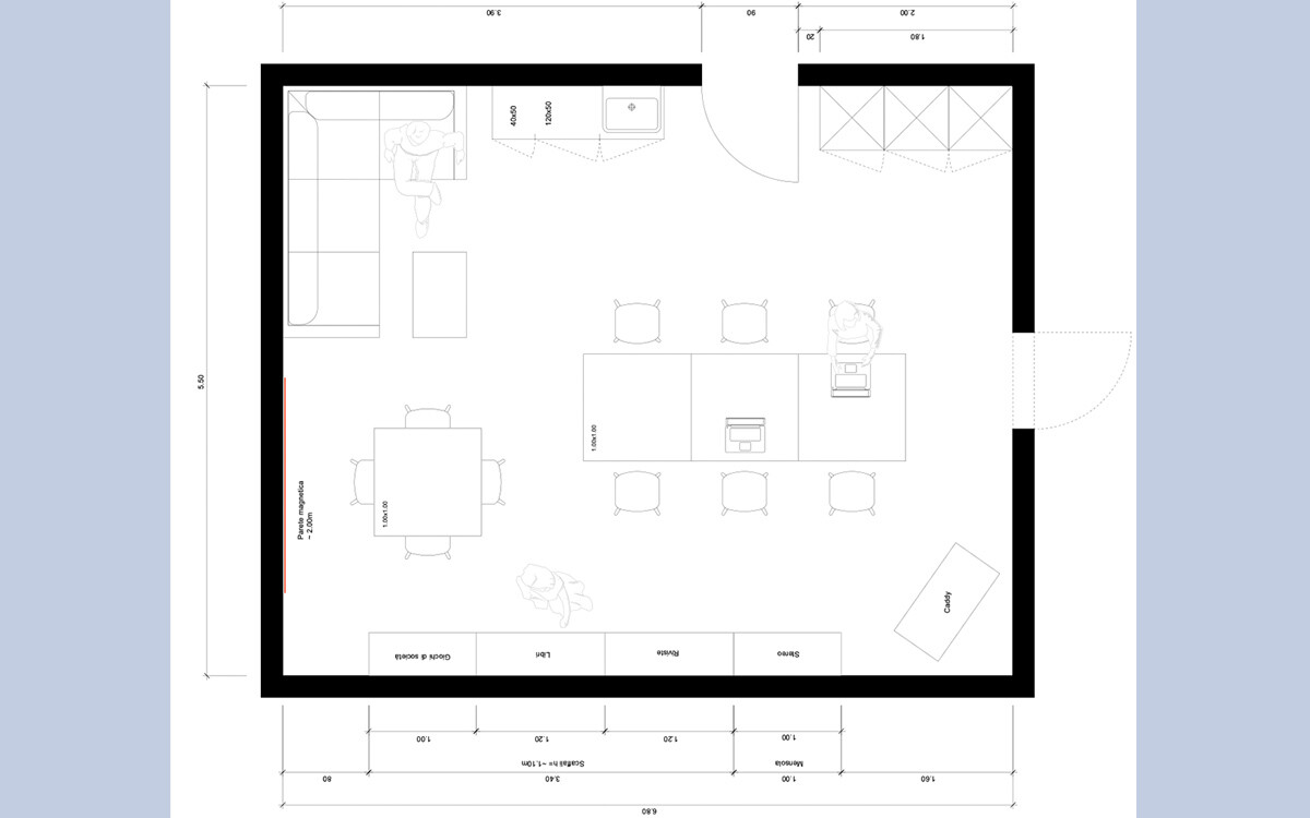
La nuova aula prevede:
• a sinistra, tre armadi con diversi materiali didattici
• a destra, un lavandino con armadio annesso
• nell’angolo, un divano per l’ascolto della musica, la lettura, il dialogo in relax (intelligenza musicale, interpersonale)
• una parete magnetica dove i ragazzi possono appendere i loro lavori e manifesti, e dove trovano spazio informazioni scolastiche, comunicazioni del Comune e notizie sulla vita sociale bregagliotta (intelligenza visivo-spaziale)
• a seguire, tre scomparti con giochi di società, libri e riviste (scienza, musica, cultura generale, quotidiani, moda, tendenze, ...) dove tutte le intelligenze possono essere coinvolte. Per esempio giocando a Monopoly mettiamo in azione l'intelligenza logico-matematica, con lo Scarabeo l’intelligenza linguistica
• un impianto audio per l’ascolto della musica e di audioracconti
• nell'angolo, uno scaffale con i computer portatili dei ragazzi e delle ragazze, che possono essere utilizzati per lavori individuali, di gruppo, ricerche, e altro
• tablet per attività creative, per esempio l'animazione digitale degli oggetti
• al centro, tre tavoli uniti per lavorare con i portatili, più un quarto tavolo, tutti dotati di rotelle per facilitarne lo spostamento
• al soffitto, un proiettore
• pavimento colorato (prevista una consulenza a proposito del colore)
• pareti bianche per mantenere la luminosità del locale.
Il valore aggiunto
Realizziamo uno spazio accogliente, costruito a misura di studenti, un’aula didattica intelligente, a disposizione dei giovani anche durante le ore senza lezioni. Un ambiente che potrà essere utilizzato anche dagli e dalle insegnanti per attività mirate e dall’orientatore professionale durante le sue visite a scuola.
Progetto curato dalla docente E. Roganti